Plac zabaw do ogrodu – na co zwrócić uwagę?
Kompletny przewodnik 2025 dla rodziców.
Wybór odpowiedniego placu zabaw do ogrodu to decyzja, która wpływa nie tylko na bezpieczeństwo, ale też na rozwój dziecka. Jeśli zastanawiasz się, jak wybrać plac zabaw do ogrodu, ten przewodnik 2025 przeprowadzi Cię przez najważniejsze elementy: bezpieczeństwo, materiały, konstrukcję, moduły, nawierzchnię i koszty.

Szybkie podsumowanie — najważniejsze rzeczy w 30 sekund.
✔ konstrukcja wykonana z zasadami normy PN-EN 1176
✔ wolna strefa bezpieczeństwa min. 1,5–2 m
✔ drewno o przekroju min. 7×7 cm
✔ zaokrąglone krawędzie i antypoślizgowe stopnie
✔ solidne mocowanie do gruntu
✔ modułowość (możliwość rozbudowy)
✔ odpowiednia nawierzchnia: piasek, trawa, mata, zrębki
✔ dopasowanie zestawu do wielkości ogrodu
1. Bezpieczeństwo
Najważniejsze kryterium przy wyborze placu zabaw.
Każdy plac zabaw, również ten w ogrodzie prywatnym, powinien być zaprojektowany zgodnie z ogólnymi wytycznymi. Przy wyborze placu zabaw do ogrodu najważniejsze jest bezpieczeństwo konstrukcji i zgodność z normą PN-EN 1176. Norma ta określa m.in.:
✔ stabilność konstrukcji,
✔ minimalne odstępy między elementami,
✔ wysokości dostosowane do wieku dziecka,
✔ brak zakleszczeń, ostrych krawędzi
Co powinien mieć bezpieczny plac zabaw?
✔ słupy nośne o grubości min. 7×7 cm
✔ strefę buforową 1,5–2 m wokół urządzeń
✔ gładkie, oszlifowane drewno
✔ zaokrąglone krawędzie
✔ antypoślizgowe stopnie i podesty
✔ mocowanie do gruntu (kotwy ocynkowane)
✔ łańcuchy i uchwyty zabezpieczone antykorozyjnie
Producenci tacy jak OGRODECO stosują solidne przekroje i bezpieczne rozwiązania konstrukcyjne, dlatego ich place są często wybierane przez świadomych rodziców.

2. Materiał

Dlaczego warto postawić na drewno?
Drewniany plac zabaw do ogrodu to obecnie najczęściej wybierane rozwiązanie dzięki naturalności i trwałości materiału. Na tle plastiku i metalu wypada zdecydowanie lepiej w codziennym użytkowaniu.
Zalety drewnianych placów zabaw.
✔ nie nagrzewają się w słońcu jak metal
✔ są przyjemne w dotyku i naturalne sensorycznie
✔ wkomponowują się w ogród
✔ w razie potrzeby można je łatwo naprawić
✔ zapewniają większą stabilność niż plastik
✔ dobrze zaimpregnowane są bardzo trwałe
Drewniane konstrukcje OGRODECO powstają z solidnych elementów impregnowanych, dzięki czemu są odporne na warunki atmosferyczne i upływ czasu.
3. Funkcjonalność i modułowość
Plac zabaw, który rośnie razem z dzieckiem.
Dobry plac zabaw do ogrodu powinien oferować możliwość rozbudowy o kolejne moduły wraz z wiekiem dziecka.
Co powinno znaleźć się w podstawowym zestawie?
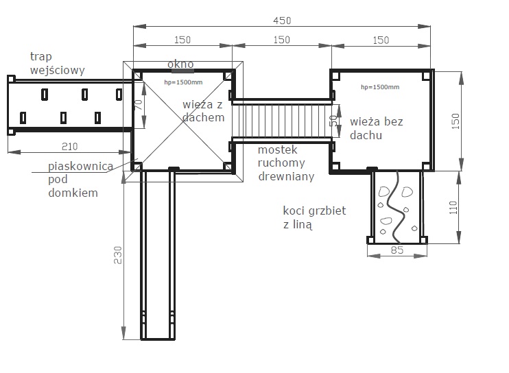
✔ wieża lub domek
✔ zjeżdżalnia o długości min. 250 cm
✔ huśtawki z możliwością wymiany siedzisk
✔piaskownica
✔ ścianka wspinaczkowa
✔ drążek gimnastyczny lub mostek
✔ liny lub uchwyty wspinaczkowe
Taki zestaw wspiera rozwój motoryki dużej, równowagi, koordynacji oraz kreatywności.
4. Projektowanie
Dopasowanie placu zabaw do wielkości i układu ogrodu.
Zanim kupisz plac zabaw do ogrodu, dopasuj go do wielkości działki i strefy bezpieczeństwa. Ważne jest dopasowanie zestawu do:
✔ wielkości ogrodu,
✔ kształtu działki,
✔ odległości od ogrodzenia i budynków,
✔ nasłonecznienia,
✔ widoczności z domu.
Wskazówki praktyczne
W małych ogrodach wyróżniają się konstrukcje z domkiem np. P5.
W większych przestrzeniach najlepiej sprawdzają się wieże podwójne i zestawy modułowe np. P8.
Huśtawki nie powinny znajdować się pod drzewami (gałęzie = ryzyko).
Unikaj montowania placu tuż przy ogrodzeniu — potrzebna jest strefa buforowa.
5. Przygotowanie podłoża
Jaka nawierzchnia pod plac zabaw jest najbezpieczniejsza?
Nawierzchnia amortyzująca to klucz do bezpieczeństwa. Najlepiej sprawdzają się:
✔ piasek (świetna amortyzacja),
✔ zrębki drewniane (naturalne i estetyczne),
✔ mata gumowa (najpraktyczniejsza),
✔ trawa (najczęściej przy przydomowych placach zabaw).
Jak dbać o nawierzchnię?
✔ regularnie uzupełniaj piasek/zrębki
✔ dbaj o odpływ wody
✔ usuwaj gałęzie i twarde przedmioty
✔ utrzymuj teren równy i stabilny
6. Koszty i jakość
Co wpływa na cenę placu zabaw?
Koszt zależy głównie od:
✔ rodzaju materiału,
✔ wielkości i złożoności konstrukcji,
✔ długości zjeżdżalni,
✔ jakości impregnacji,
✔ liczby modułów dodatkowych,
✔ grubości elementów nośnych.
Choć drewniane zestawy (np. OGRODECO) są droższe niż plastik, są zdecydowanie trwalsze i mogą służyć przez wiele lat — często wystarczy wymienić pojedyncze moduły, a nie cały plac.
7. Zestawy
Przykładowe zestawy dostępne na rynku (ranking praktyczny)
Checklista przed zakupem placu zabaw
✔ zmierz ogród i określ wolną przestrzeń
✔ upewnij się, że zachowasz min. 1,5–2 m strefy bezpieczeństwa
✔ wybierz drewno o grubych przekrojach (min. 7×7 cm)
✔ sprawdź, czy są zaokrąglone krawędzie
✔ wybierz zjeżdżalnię min. 220–250 cm
✔ oceń możliwość rozbudowy zestawu
✔ sprawdź rodzaj impregnacji (profesjonalne farby)
✔ wybierz nawierzchnię amortyzującą
✔ upewnij się, że konstrukcja ma stabilne mocowanie (kotwy)
✔ sprawdź gwarancję i dostępność części wymiennych
Podsumowanie — jak wybrać najlepszy plac zabaw?
Najlepszy plac zabaw do ogrodu to taki, który łączy bezpieczeństwo, solidne materiały i możliwość rozbudowy.
Podczas wyboru placu zabaw do ogrodu zwróć szczególną uwagę na:
✔ bezpieczeństwo i zgodność ze standardami,
✔ naturalne, trwałe materiały (najlepiej drewno),
✔ funkcjonalność i możliwość rozbudowy,
✔ dopasowanie do przestrzeni w ogrodzie,
✔ jakość wykonania i impregnacji,
✔ odpowiednią nawierzchnię pod konstrukcją.
Plac zabaw OGRODECO łączy trwałość, naturalny design i wysokie bezpieczeństwo, dlatego jest świetnym wyborem dla rodziców, którzy szukają konstrukcji na lata.
Najczęściej zadawane pytania (FAQ)
Czy plac zabaw w ogrodzie musi spełniać normy PN-EN 1176?
✔ Formalnie nie, jeśli jest to plac prywatny, ale warto wybierać konstrukcje zgodne z normą dla
bezpieczeństwa.
Jakie podłoże jest najbezpieczniejsze?
✔ Piasek i zrębki dają najlepszą amortyzację. Mata gumowa jest najbardziej praktyczna.
Od jakiego wieku dziecko może korzystać z placu zabaw?
✔ Proste konstrukcje — od 1,5–2 lat (piaskownica, krótka zjeżdżalnia).
Pełne zestawy — od ok. 3 lat.
Czy drewno wymaga konserwacji?
✔ Tak, warto raz w roku odświeżyć impregnację.
Ile trwa montaż?
✔ Zwykle 3–6 godzin, w zależności od modelu.
Czy plac zabaw można rozbudować w przyszłości?
✔ Tak, modułowe zestawy OGRODECO umożliwiają dodawanie wież, ścianek, mostków i
akcesoriów.



